GB/T 17880.1 - 1999 平头铆螺母
工艺:
详细信息
GB/T 17880.1 - 1999 平头铆螺母
材质、等级:碳钢、不锈钢、铝材质等
表面处理:普通蓝白锌、普通彩锌、环保蓝白锌、环保彩锌、环保黑锌、环保达克罗等
盐雾时间:可做72H、144H、720H等
形状可分为:六角型、圆柱型、带竖纹等(具体可咨询客服)
南京东明紧固件代理销售各种铆螺母及配套工具,如有需求请电话联系。
电话咨询:400-086-0001 025-86183701-8026
徐小姐
邮件咨询:dm8026@18luosi.com
QQ咨询:2850588428
手机咨询:13584080500
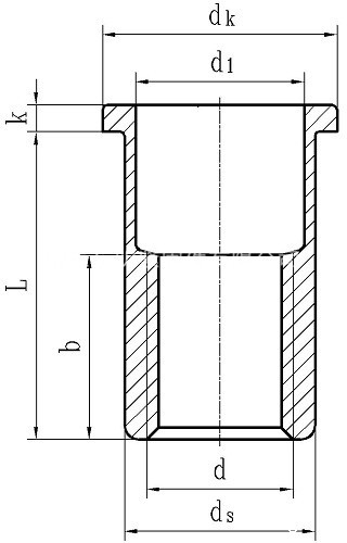
公称直径 | M3 | M4 | M5 | M6 | M8 | M10 | M10 | M12 | M12 | |
P | 螺距 | 0.5 | 0.7 | 0.8 | 1 | 1.25 | 1.5 | 1 | 1.75 | 1.5 |
ds | 公称 | 5 | 6 | 7 | 9 | 11 | 13 | 13 | 15 | 15 |
最大值 | 4.97 | 5.97 | 6.97 | 8.97 | 10.97 | 12.97 | 12.97 | 14.97 | 14.97 | |
最小值 | 4.9 | 5.9 | 6.9 | 8.9 | 10.9 | 12.9 | 12.9 | 14.9 | 14.9 | |
d1 | 最大值 | 4.12 | 4.92 | 5.72 | 7.65 | 9.35 | 11.18 | 11.18 | 13.18 | 13.18 |
最小值=公称 | 4 | 4.8 | 5.6 | 7.5 | 9.2 | 11 | 11 | 13 | 13 | |
dk | 最大值 | 8 | 9 | 10 | 12 | 14 | 16 | 16 | 18 | 18 |
k | 0.8 | 0.8 | 1 | 1.5 | 1.5 | 1.8 | 1.8 | 1.8 | 1.8 | |
①,b=(1.25~1.5)d |